面積:17㎡
面積:17㎡
面積:28㎡
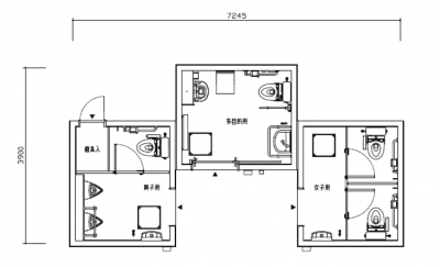
面積:8.6㎡
面積:5.4㎡
面積:14㎡
面積:37㎡
面積:6.4㎡
面積:9.7㎡
面積:41㎡
面積:5.4㎡
面積:23㎡
面積:11㎡