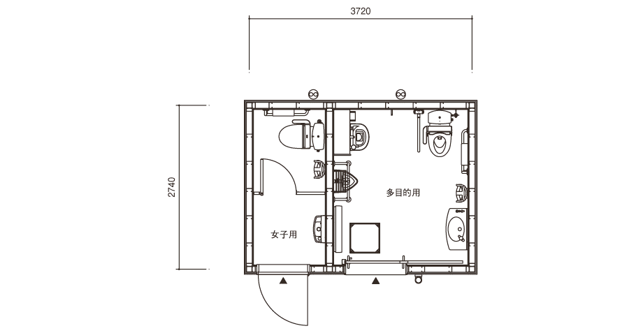
TB-75-56-035 設置場所:新潟県 上越市 構成 外観イメージ サイディングモダン・シンプル 屋根イメージ 陸屋根 躯体構造 S造 屋根構造 RC造 重量 寸法 3.720×2.740 面積 10㎡ 外壁 サイディングボード張り 文字盤 柱 仕上げ 材質 備考 ※寸法は壁芯寸法です。 ※面積は建築面積を示します。 トイレ種別 和便器 洋便器 小便器 男性用 - - - 女性用 - 1 - 男女兼用 - - - 多目的 - 1 1 その他設備 オストメイト ベビーシート ベビーチェア 男性用 - - - 女性用 - - 1 男女兼用 - - - 多目的 - 1 1