landscape works

TB-76-56-111 TB-76-56-111
  • RCトイレ

TB-76-56-111

設置場所:神奈川県 足柄市

富士山が見えるトイレ

神奈川県足柄市の山北つぶらの公園、ここは上下水が届いていませんが、循環システムを採用し、利用者の皆様も快適に使って頂けます。室内にも窓を設置してあり、富士山を望むことができます。
是非、天気のいい日にお立ち寄りください。

構成

  • 外観イメージ
    屋根イメージ
    躯体構造
    屋根構造
    重量
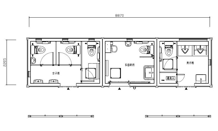
    寸法 2205×8870
    面積 19.6㎡
    外壁
    文字盤
    仕上げ ジョリパッド
    材質
    備考
  • トイレ種別

    和便器 洋便器 小便器
    男性用 男性用 - 1 2
    女性用 女性用 - 2 -
    男女兼用 男女兼用 - - -
    多目的 多目的 - 1 -

    その他設備

    オストメイト ベビーシート ベビーチェア
    男性用 男性用 - - -
    女性用 女性用 - - -
    男女兼用 男女兼用 - - -
    多目的 多目的 1 1 1