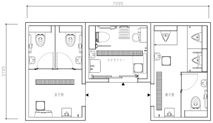
RCトイレ TB-83-55-003 設置場所:東京都 文京区 構成 外観イメージ タイル洋風 屋根イメージ パラペット屋根 躯体構造 屋根構造 RC造 重量 寸法 3705×7095 面積 26.3㎡ 外壁 文字盤 柱 仕上げ 材質 備考 トイレ種別 和便器 洋便器 小便器 男性用 - - 3 女性用 - 2 - 男女兼用 - - - 多目的 - 1 - その他設備 オストメイト ベビーシート ベビーチェア 男性用 - - 2 女性用 - 1 2 男女兼用 - - - 多目的 1 1 1