landscape works

TB-72-56-066 TB-72-56-066

TB-72-56-066

設置場所:埼玉県 さいたま市

雨が降りこむルーバーガラリ屋根でホームレスの安住を防ぎます。設定時間以上室内に滞在すると警告灯・警告音で外部に異常を知らせます。

構成

  • 外観イメージ
    屋根イメージ
    躯体構造
    屋根構造
    重量
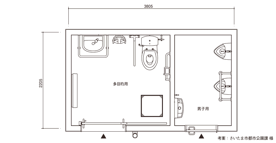
    寸法 3.805×2.205
    面積 8.4㎡
    外壁 50角タイル張
    文字盤
    仕上げ
    材質
    備考

    ※寸法は壁芯寸法です。
    ※面積は建築面積を示します。

  • トイレ種別

    和便器 洋便器 小便器
    男性用 男性用 - - 2
    女性用 女性用 - - -
    男女兼用 男女兼用 - - -
    多目的 多目的 - 1 1

    その他設備

    オストメイト ベビーシート ベビーチェア
    男性用 男性用 - - -
    女性用 女性用 - - -
    男女兼用 男女兼用 - - -
    多目的 多目的 - - 1
  • TB-72-56-066
  • TB-72-56-066