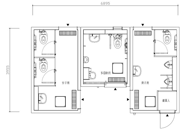
TB-81-57-153 設置場所:東京都 葛飾区 構成 外観イメージ 塗装洋風 屋根イメージ 躯体構造 WRC造 屋根構造 S造鋼板葺き 重量 寸法 3955×6895 面積 27.3㎡ 外壁 文字盤 柱 仕上げ 材質 備考 トイレ種別 和便器 洋便器 小便器 男性用 - 1 2 女性用 - 2 - 男女兼用 - - - 多目的 - 1 - その他設備 オストメイト ベビーシート ベビーチェア 男性用 - - - 女性用 - - - 男女兼用 - - - 多目的 1 1 1