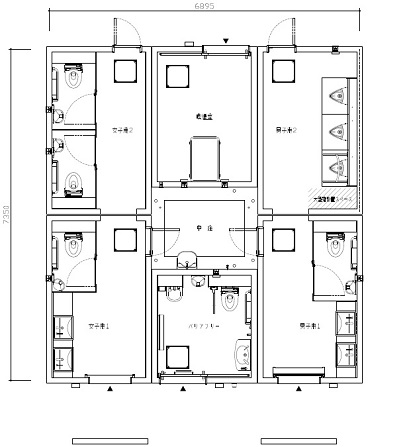
RCトイレ TB-84-26-018 設置場所:愛知県 岡崎市 構成 外観イメージ 塗装洋風 屋根イメージ パラペット屋根 躯体構造 WRC造 屋根構造 RC造 重量 寸法 7350×6895 面積 50.7㎡ 外壁 文字盤 柱 仕上げ 材質 備考 トイレ種別 和便器 洋便器 小便器 男性用 - 1 3 女性用 - 3 - 男女兼用 - - - 多目的 - 1 - その他設備 オストメイト ベビーシート ベビーチェア 男性用 - - 1 女性用 - - 3 男女兼用 - - - 多目的 1 1 1