landscape works

TB-80-57-047 TB-80-57-047

TB-80-57-047

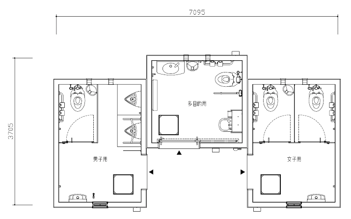
設置場所:東京都 大田区

多摩川台公園トイレ

構成

  • 外観イメージ
    屋根イメージ
    躯体構造
    屋根構造
    重量
    寸法 7,095×3,705
    面積 26.29㎡
    外壁 50二丁タイル張り
    防水形複層塗材E
    文字盤
    仕上げ
    材質
    備考
  • トイレ種別

    和便器 洋便器 小便器
    男性用 男性用 - 1 2
    女性用 女性用 - 2 -
    男女兼用 男女兼用 - - -
    多目的 多目的 - 1 -

    その他設備

    オストメイト ベビーシート ベビーチェア
    男性用 男性用 - - 1
    女性用 女性用 - - 1
    男女兼用 男女兼用 - - -
    多目的 多目的 1 1 1