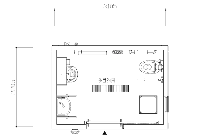
TB-79-50-124 設置場所:神奈川県 横浜市 構成 外観イメージ 塗装和風 屋根イメージ 切妻屋根 躯体構造 WRC造 屋根構造 鋼板葺き 重量 寸法 3.105×2.205 面積 6.8㎡ 外壁 防水型複層塗材E 文字盤 柱 仕上げ 材質 備考 トイレ種別 和便器 洋便器 小便器 男性用 - - - 女性用 - - - 男女兼用 - - - 多目的 - 1 1 その他設備 オストメイト ベビーシート ベビーチェア 男性用 - - - 女性用 - - - 男女兼用 - - - 多目的 - 1 1