landscape works

TB-77-25-082 TB-77-25-082

TB-77-25-082

設置場所:愛知県 岩倉市

構成

  • 外観イメージ
    屋根イメージ
    躯体構造
    屋根構造
    重量
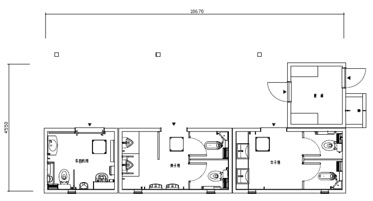
    寸法 1.0670×2.355
    面積 28㎡
    外壁 防水型複層塗材E
    50角タイル張り
    文字盤
    仕上げ
    材質
    備考

    駅前広場

  • トイレ種別

    和便器 洋便器 小便器
    男性用 男性用 1 1 2
    女性用 女性用 1 1 -
    男女兼用 男女兼用 - - -
    多目的 多目的 1 1 1

    その他設備

    オストメイト ベビーシート ベビーチェア
    男性用 男性用 - - -
    女性用 女性用 - - -
    男女兼用 男女兼用 - - -
    多目的 多目的 - 1 1