landscape works

TB-77-55-002 TB-77-55-002

TB-77-55-002

設置場所:東京都 文京区

構成

  • 外観イメージ
    屋根イメージ
    躯体構造
    屋根構造
    重量
    寸法 13.320×2.205
    面積 29㎡
    外壁 防水型複層塗材E
    文字盤
    仕上げ
    材質
    備考
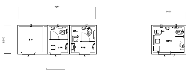
  • トイレ種別

    和便器 洋便器 小便器
    男性用 男性用 - 1 1
    女性用 女性用 - 1 -
    男女兼用 男女兼用 - - -
    多目的 多目的 - 1 1

    その他設備

    オストメイト ベビーシート ベビーチェア
    男性用 男性用 - - 1
    女性用 女性用 - - 1
    男女兼用 男女兼用 - - -
    多目的 多目的 - 1 1