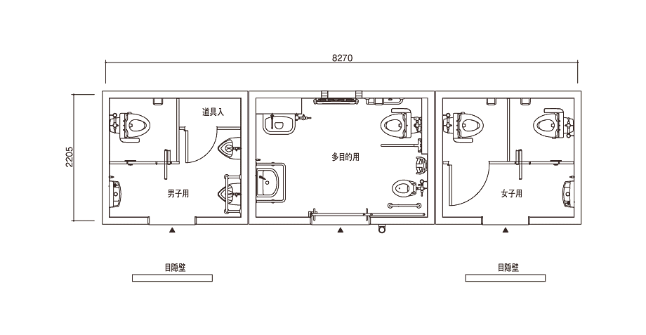
道具入 TB-72-55-059 設置場所:熊本県 阿蘇市 構成 外観イメージ 塗装モダン・シンプル 屋根イメージ 陸屋根 躯体構造 WRC造 屋根構造 RC造 重量 寸法 8.270×2.205 面積 18㎡ 外壁 防水形複層塗材E 文字盤 柱 仕上げ 材質 備考 ※寸法は壁芯寸法です。 ※面積は建築面積を示します。 トイレ種別 和便器 洋便器 小便器 男性用 - 1 2 女性用 - 2 - 男女兼用 - - - 多目的 - 2 1 その他設備 オストメイト ベビーシート ベビーチェア 男性用 - - - 女性用 - - - 男女兼用 - - - 多目的 - 1 1