landscape works

TB-84-26-43 TB-84-26-43
  • RCトイレ

TB-84-26-43

設置場所:愛知県 岡崎市

構成

  • 外観イメージ
    屋根イメージ
    躯体構造
    屋根構造
    重量
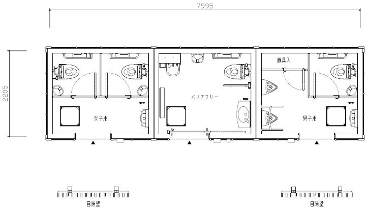
    寸法 2205×7995
    面積 17.7㎡
    外壁
    文字盤
    仕上げ
    材質
    備考
  • トイレ種別

    和便器 洋便器 小便器
    男性用 男性用 - 1 2
    女性用 女性用 - 2 -
    男女兼用 男女兼用 - - -
    多目的 多目的 - 1 -

    その他設備

    オストメイト ベビーシート ベビーチェア
    男性用 男性用 - - 1
    女性用 女性用 - - 2
    男女兼用 男女兼用 - - -
    多目的 多目的 1 1 1