landscape works

TB-76-56-124 TB-76-56-124

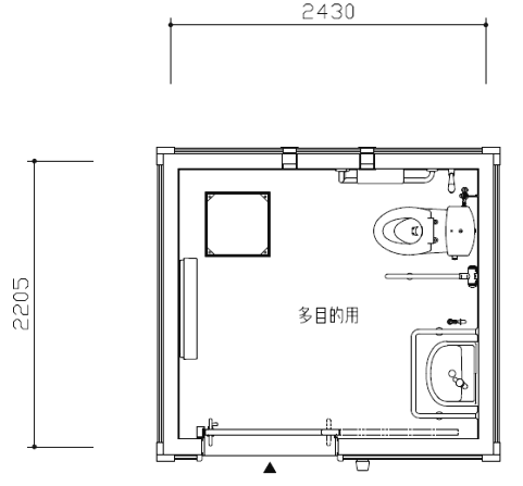
TB-76-56-124

設置場所:埼玉県 飯能市

構成

  • 外観イメージ
    屋根イメージ
    躯体構造
    屋根構造
    重量
    寸法 2.430×2.205
    面積 5.4㎡
    外壁 杉板張り
    自然石調塗装
    文字盤
    仕上げ
    材質
    備考
  • トイレ種別

    和便器 洋便器 小便器
    男性用 男性用 - - -
    女性用 女性用 - - -
    男女兼用 男女兼用 - - -
    多目的 多目的 - 1 -

    その他設備

    オストメイト ベビーシート ベビーチェア
    男性用 男性用 - - -
    女性用 女性用 - - -
    男女兼用 男女兼用 - - -
    多目的 多目的 - - 1