landscape works

TB-74-56-013 TB-74-56-013

TB-74-56-013

設置場所:埼玉県 新座

構成

  • 外観イメージ
    屋根イメージ
    躯体構造
    屋根構造
    重量
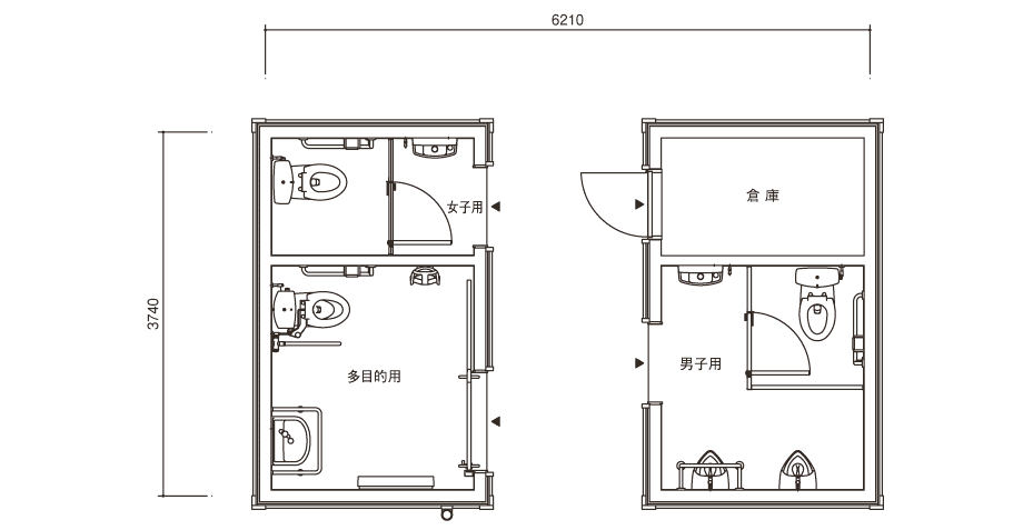
    寸法 6.210×3.740
    面積 23㎡
    外壁 ログ風板張
    防水形複層塗材E
    文字盤
    仕上げ
    材質
    備考

    ※寸法は壁芯寸法です。
    ※面積は建築面積を示します。

  • トイレ種別

    和便器 洋便器 小便器
    男性用 男性用 - 1 2
    女性用 女性用 - 1 -
    男女兼用 男女兼用 - - -
    多目的 多目的 - 1 1

    その他設備

    オストメイト ベビーシート ベビーチェア
    男性用 男性用 - - -
    女性用 女性用 - - -
    男女兼用 男女兼用 - - -
    多目的 多目的 - - 1