landscape works

TB-85-53-1055 TB-85-53-1055
  • RCトイレ

TB-85-53-1055

設置場所:埼玉県 所沢市

構成

  • 外観イメージ
    屋根イメージ
    躯体構造
    屋根構造
    重量
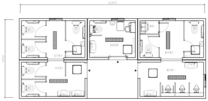
    寸法 4410×10395
    面積 46㎡
    外壁
    文字盤
    仕上げ
    材質
    備考
  • トイレ種別

    和便器 洋便器 小便器
    男性用 男性用 - 2 3
    女性用 女性用 - 5 -
    男女兼用 男女兼用 - - -
    多目的 多目的 - 1 -

    その他設備

    オストメイト ベビーシート ベビーチェア
    男性用 男性用 - - 1
    女性用 女性用 - - 1
    男女兼用 男女兼用 - - -
    多目的 多目的 1 1 1