landscape works

TB-77-55-013 TB-77-55-013

TB-77-55-013

設置場所:東京都 世田谷区

構成

  • 外観イメージ
    屋根イメージ
    躯体構造
    屋根構造
    重量
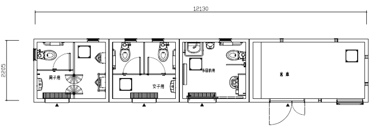
    寸法 12.130×2.205
    面積 27㎡
    外壁 コンクリート打放し仕上
    文字盤
    仕上げ
    材質
    備考 RC片流れ屋根
  • トイレ種別

    和便器 洋便器 小便器
    男性用 男性用 - 1 2
    女性用 女性用 - 2 -
    男女兼用 男女兼用 - - -
    多目的 多目的 - 1 1

    その他設備

    オストメイト ベビーシート ベビーチェア
    男性用 男性用 - - -
    女性用 女性用 - - -
    男女兼用 男女兼用 - - -
    多目的 多目的 - 1 1