landscape works

LSユニットトイレ Sai LSユニットトイレ Sai
  • LSトイレ

LSユニットトイレ Sai

設置場所:山梨県 笛吹市

境川カントリークラブ様

山梨県笛吹市の境川カントリー倶楽部様のゴルフコース内に設置させていただきました。
ゴルフをプレーされる方向けのトイレです。
※外壁色はオプションです。

構成

  • 外観イメージ
    屋根イメージ
    躯体構造
    屋根構造
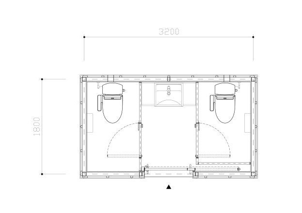
    重量 1.8t
    寸法 3,200×1,800
    面積 5.76㎡
    外壁 薄付け仕上塗材
    文字盤
    仕上げ
    材質
    備考
  • トイレ種別

    和便器 洋便器 小便器
    男性用 男性用 - 1 -
    女性用 女性用 - 1 -
    男女兼用 男女兼用 - - -
    多目的 多目的 - - -

    その他設備

    オストメイト ベビーシート ベビーチェア
    男性用 男性用 - - -
    女性用 女性用 - - -
    男女兼用 男女兼用 - - -
    多目的 多目的 - - -